Attico in affitto a Bologna
Attico DI CIRCA MQ. 170,00 COMPLETAMENTE RISTRUTTURATO POSTO IN LOCAZIONE NELLE ADIACENZE DI PIAZZA MINGHETTI .
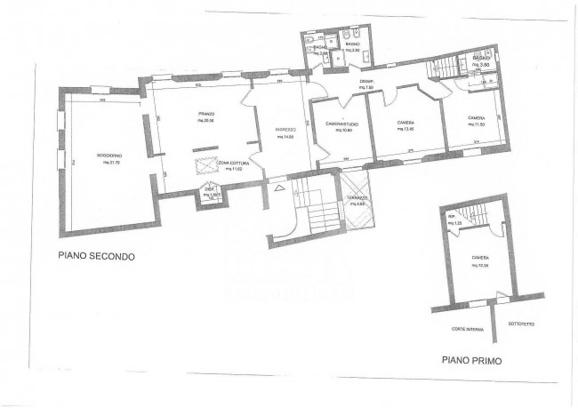
CARATTERISTICHE E PARTICOLARITA' DELL' IMMOBILE
L'Attico, servito da ascensore, è assolutamente silenzioso e offre affacci caratteristici dell'antica Bologna. Una graziosa terrazzina permette di spaziare con lo sguardo sui tetti delle costruzioni vicine arrivando fino ai 2/3 superiori della Torre degli Asinelli che si staglia contro il cielo. Riassumendo l' abitazione risulta particolarmente luminosa, silenziosa e dotata di suggestive vedute.
DISTRIBUZIONE INTERNA DEGLI SPAZI
Entrando nell'appartamento ci si trova in un ampio e luminoso ingresso arredabile di c.a mq.14,00 dal quale si accede a sinistra nella parte giorno composta da:
sala da pranzo di mq. 20,00 con quinta di muro che la separa dalla zona cottura di mq.11,60 completamente arredata e fornita di dispensa, infine salone adiacente di c.a mq.30,00.
Proseguendo a destra dell'ingresso si accede alla parte notte composta da:
3 camere di cui una con la terrazzina sopra descritta, un'altra camera con bagno dedicato, e altri 2 bagni. Completa l'abitazione una breve scala che porta in una stanza di circa mq.12,00 con antiche travi a vista che può essere stanza da lavoro/ lavanderia. Anche questo vano gode di una veduta caratteristica sui tetti. Da questo vano si può accedere a un vasto sottotetto come ripostiglio.
Il riscaldamento è autonomo con termosifoni in metallo. E' presente l'aria condizionata. I 3 bagni sono dotati di sanitari sospesi e doccia.
NOTE STORICHE E UBICAZIONE
La costruzione all' interno della quale si trova l'appartamento fa parte di un complesso storico che, dalle notizie dell'epoca, sembra sia stato eretto anticamente da un appartenente ad una nobile Famiglia bolognese. Attualmente il complesso si affaccia su un lato di Piazza Minghetti.
